FAIR-MAKLER: Lange gesucht, endlich gefunden - Bungalow in Ortsrandlage
Objektart
Adresse
Objektdaten
Informationen
Ausstattung
Details
Willkommen in Ihrem neuen Zuhause! Dieser charmante Bungalow bietet Ihnen alles, was Sie für ein komfortables Leben benötigen. Mit einer Wohnfläche von 176,61 m² und einem großzügigen Grundstück von 635 m² ist dieses Haus perfekt für Familien und alle, die gerne Platz haben.
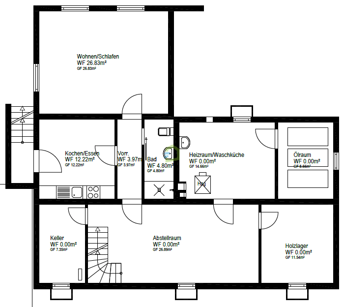
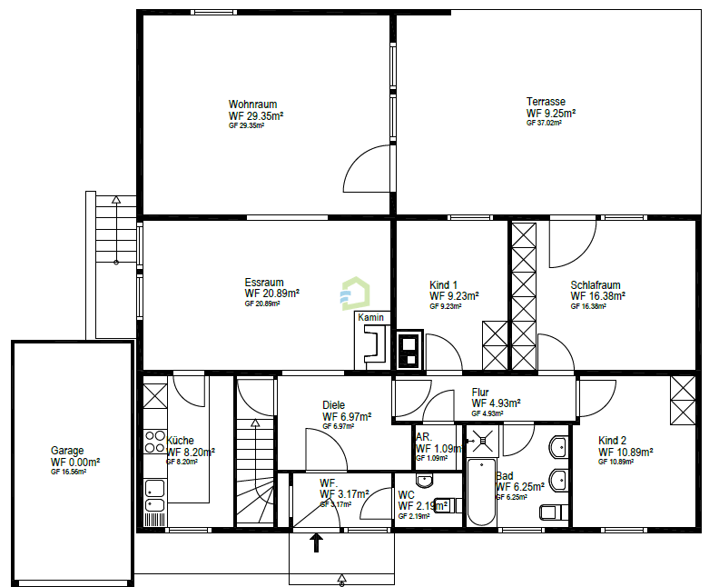
Das Haus verfügt über 5 Zimmer, 4 geräumige Schlafzimmer und 2 Badezimmer. Die letzte Modernisierung fand im Jahr 2010 (neue Heizung) statt, sodass die Immobilie in einem gepflegten Zustand ist. Die Ausstattung ist normal und funktional, ideal für unkompliziertes Wohnen.
Die Böden sind mit einer Mischung aus Fliesen, Laminat und Parkett versehen, was für eine warme und einladende Atmosphäre sorgt. Die Garage und die 2 zusätzlichen Außenstellplätze bieten ausreichend Platz für Ihre Fahrzeuge. Im Keller finden Sie praktischen Stauraum und einen gesonderten Abstellraum für Ihre Vorräte. Ein Gäste-WC sorgt für zusätzlichen Komfort.
Die Einbauküche ist im Kaufpreis enthalten und ermöglicht es Ihnen, sofort mit dem Kochen zu beginnen. Die Zentralheizung mit Öl sorgt das ganze Jahr über für eine angenehme Temperatur im Haus.
Sankt Johann, der idyllische Standort dieser Immobilie, bietet eine ruhige und dennoch zentrale Lage. Genießen Sie die Vorzüge einer ländlichen Umgebung mit guter Anbindung an die Stadt. Dieses Haus ist eine hervorragende Gelegenheit, um in einer schönen und gepflegten Umgebung zu leben.
Fertighaus der Marke Okal
Einliegerwohnung im UG möglich
Insgesamt gepflegter Zustand
- Sanierung Flachdach 2005
- Ölheizung Baujahr 2010
- Öltanks Baujahr 2011
- 1 Einzelgarage und 2 Außenstellplätze
Lagebeschreibung:
Diese Immobilie befindet sich im charmanten Ortsteil Upfingen der Gemeinde Sankt Johann, Postleitzahl 72813. Die strategisch günstige Lage bietet eine hervorragende Anbindung an wichtige Verkehrsknotenpunkte.
- Die nächste Autobahn ist nur 40 Fahrminuten entfernt, was Pendlern und Reisenden eine schnelle und unkomplizierte Verbindung zu überregionalen Zielen ermöglicht.
- Der nächste Hauptbahnhof ist in lediglich 25 Fahrminuten in Metzingen oder Reutlingen erreichbar, ideal für regelmäßige Bahnreisende.
- Der nächstgelegene Flughafen befindet sich 46 Fahrminuten entfernt, perfekt für Geschäftsreisende oder Urlauber, die schnell und bequem abreisen möchten.
Upfingen selbst besticht durch seine ruhige und naturnahe Lage, hier erholen Sie sich bestens vom Alltagsstress. Genießen Sie das Beste aus beiden Welten: ländlicher Charme mit urbaner Zugänglichkeit.
Sämtliche Angaben beruhen auf Auskünften des Eigentümers und wurden nach bestem Wissen und Gewissen geprüft. Aufgrund der Komplexität und der Historie einer Immobilien kann fair-makler.immo keine Haftung übernehmen. Bitte berücksichtigen Sie dies und fragen Sie ggfs. bei Unklarheiten einfach nochmal nach.
Die Provision für Kaufende beträgt 3,57 % inkl. MwSt. und ist verdient und fällig mit Abschluss des notariellen Kaufvertrages. Mit der Verkäuferseite wurde ein Vertrag in derselben Höhe geschlossen.
Im Vorfeld senden wir Ihnen gerne einen Link zu unserem virtuellen 360-Grad-Rundgang, so können Sie sich einen quasi ersten "Live-Eindruck" der Immobilie verschaffen. Weitere Fotos auf unserer Homepage unter www.fair-makler.immo
WICHTIG:
Bitte beachten Sie, dass wir nur mit wirklichen Interessenten (Anfrage mit Adresse/E-Mail/Telefon) Termine machen. Aufgrund der aktuellen Zinskonditionen lohnt es sich zudem, zunächst vorab bei Ihrer Hausbank bzw. einem Finanzierungsberater die Finanzierungsmöglichkeiten abzuklären. Hierbei unterstützen wir gerne. Weiter beantworten wir Ihre Fragen vorab am Telefon oder per E-Mail.
Energieausweis (Bedarfsausweis)
245,90 kWh / (m²*a) Endenergiebedarf
245,90 kWh / (m²*a) Endenergiebedarf
245,90 kWh / (m²*a) Endenergiebedarf
Weitere Informationen
| Wesentlicher Energieträger | Öl |
| Energieausweis Ausstelldatum | 2025-07-14 |
| Energieausweis gültig bis | 14.07.2035 |
| Energieausweis Jahrgang | ab dem 1.5.2014 |
| Energieausweis Werteklasse | G |
| Energieausweis Baujahr | 1979 |
| Energieausweis Gebäudeart | Wohngebäude |
| Heizung | Zentralheizung |
| Befeuerung | Öl |
Ich bin damit einverstanden, dass mir Karten von Google angezeigt werden. Es gelten die Datenschutzbedingungen von Google (https://policies.google.com/privacy).
Ich bin einverstanden